
Casa en Planos en Venta, El Pulté Ecuestre.
Casa en Planos en Venta, El Pulté Ecuestre.
El Pulté Ecuestre.
4 dormitorios, 4.5 baños, sala-comedor, cocina, pantry, cuarto de cine con cocina, sala familiar, balcones, terraza con pérgola y amplio jardín. Despensa, lavandería, patio de servicio, cuarto de servicio con baño completo, cuarto de guardianía con baño completo y 2 bodegas. Estacionamiento techado para 6 vehículos y 2 estacionamientos para carritos de golf. Elevador en todos los niveles.
Área de construcción: 1,144.52 mts²
Área de terreno: 1,548.69 vrs²
PRECIO:
$2,500,000
Código: CSV5434
Detalles de la propiedad
- 4.5 Baños
- 4
- 6 Parqueos
- 1145 Mts. 2
Amenities DE ESTA PROPIEDAD
MÁS INFORMACIÓN
Detalles adicionales
Ambientes
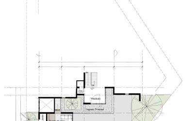
Primer nivel:
- Vestíbulo de ingreso
- Cuarto de cine
- Cocina
- Baño de visitas
- Sala-comedor con salida a terraza
- Amplia terraza con pérgola
- Cocina
- Pantry con terraza
- Despensa
- Baño secundario de visitas
- Dormitorio secundario con walk-in closet, baño privado y salida a terraza
- Jardín
- Lavandería
- Patio de servicio
- Bodega
Segundo nivel:
- Sala familiar y salida a terraza
- Dormitorio principal con walk-in closet, baño privado y terraza
- Dormitorio secundario con walk-in closet, baño privado y salida a terraza
- Dormitorio secundario con walk-in closet y baño privado
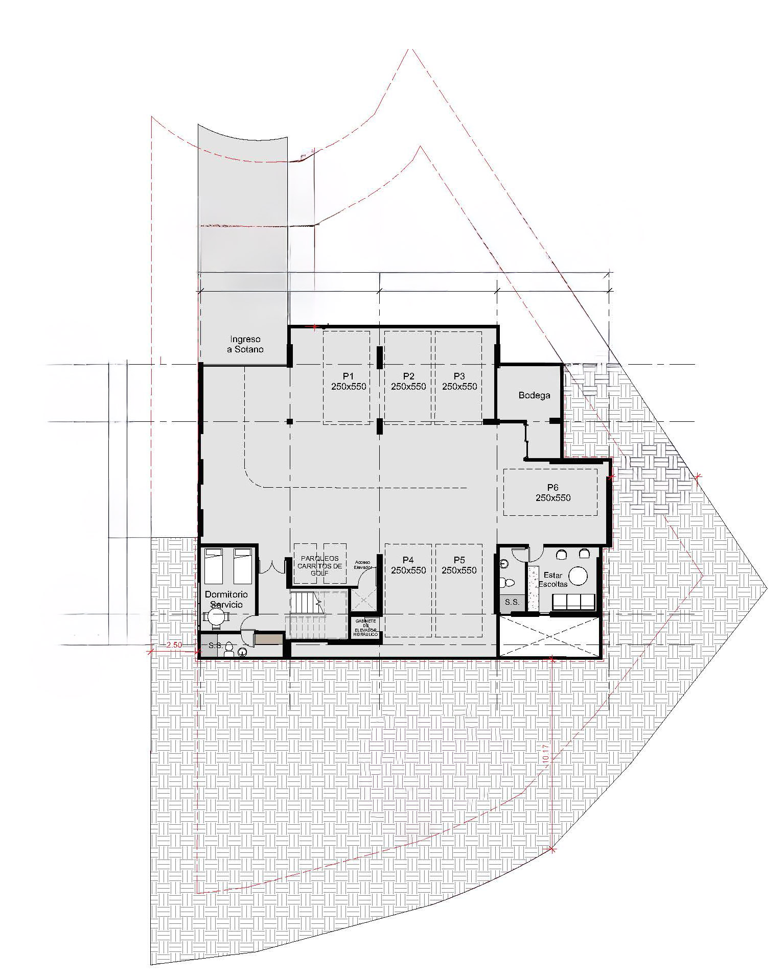
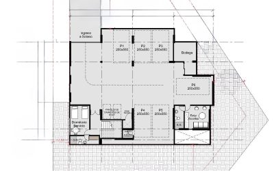
Nivel inferior:
- Bodega
- Cuarto de servicio con baño completo
- Cuarto de guardianía con baño completo
- Estacionamiento techado para 2 carritos de golf
- Estacionamiento techado para 6 vehículos
El conjunto consta de distintas áreas sociales, restaurante, piscina, gimnasio, canchas de squash y spa.











